Description de l'offre
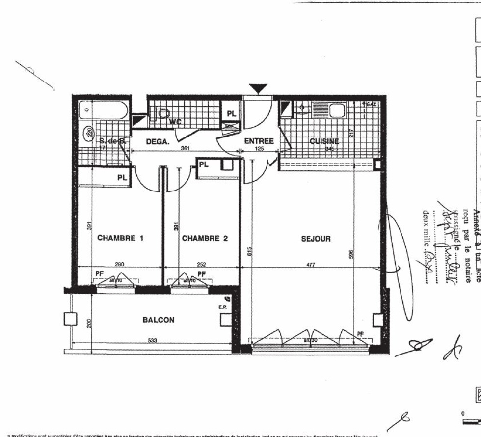
VERSAILLES - MONTREUIL, Saint Louis Immobilier vous présente ce superbe appartement 3 pièces de 69.02 m² au 3ème étage situé dans un quartier recherché à proximité des commerces et des transports à 10 minutes de la gare de Montreuil (ligne L),dans une résidence bien entretenue.L'appartement se compose d'une entrée, d'un séjour lumineux, d'une cuisine, de deux chambres, d'une salle de bains, d'un WC séparé et dispose de deux balcons agréables.Le bien comprend également une place de stationnement privative en sous-sol et une cave.Cet appartement en parfait état ne manquera pas de vous séduire !Copropriété de 182 lots.Charges annuelles : 1800.00 euros.
