Description de l'offre
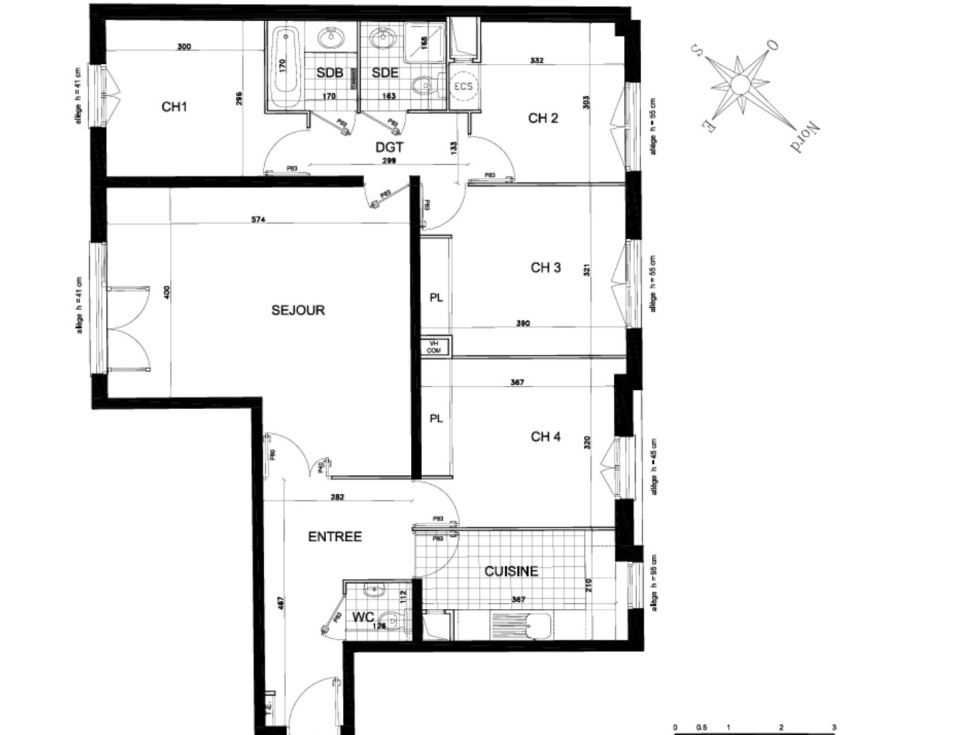
VERSAILLES - PORCHEFONTAINE, Dans une résidence récente de 2007 avec parking en sous-sol et ascenseur, un appartement 5 pièces de 97.79 m² , il se compose d'une entrée, d'un grand séjour, d'une cuisine séparée, de quatre chambres, d'une salle de douches, d'une salle de bains et d'un WC indépendant. Proche de la gare Versailles Porchefontaine (5.00 % d'honoraires TTC à la charge de l'acquéreur.)Copropriété de 17 lots (Pas de procédure en cours).Charges annuelles : 3200.00 euros.
